ブランシエスタ西馬込 5階
近くにはセブンイレブン 大田区久が原2丁目店(徒歩4分)がありちょっとした買い物に便利です。ペット相談可の物件なので、これからペットを飼おうか迷っている方にもおすすめです。あなたの生活スタイルに合ったお部屋探しをミナシアプロジェクトがサポート、お問い合わせは03-6427-9123/info@nekofu.co.jpまで、是非ご利用下さい。
- 賃料
- 19万円
- 間取り
- 2LDK
- 専有面積
- 44.39㎡
- 所在階
- 5階
- 管理費・共益費
- 18,000円
- 敷金
- 1ヶ月
- 礼金
- 1ヶ月
初期費用シミュレーションこの物件を借りた場合の初期費用の一例です。
- 賃料
- 管理費・共益費
- 敷金:
- 礼金
- 前家賃(日割り) ※1
-
- 前家賃(日割り)
- 仲介手数料 ※2
- その他費用 ※3
- 合計
※1. 1か月を30日として計算しています。
※2. 仲介手数料は仮の価格となりますので、実際の価格に関してはお気軽にお問い合わせ下さい。
※3. その他費用の項目は、保険料、清掃代※20㎡超+1,430円/㎡、エアコン清掃代16,500円/台になります。
担当者のコメント 猫スタッフきなり部長

- 西馬込駅から歩いて12分、ちょっとお散歩にちょうどいい距離にゃ。周りは静かな住宅街で、スーパーやコンビニも徒歩圏内。夜道も街灯が多くて安心にゃ。休日には洗足池公園まで足をのばすと、自然もたっぷり感じられるにゃん♪
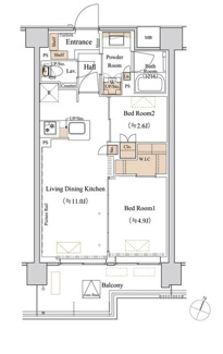
お部屋は2LDK・44.39㎡と、ふたり暮らしや猫との暮らしにぴったりサイズにゃ!南東向きで朝の光がたっぷり入るから、日なたぼっこ好きの猫さんにもおすすめにゃ~。
設備もとっても充実してるにゃ。追焚機能付きお風呂に、浴室乾燥機、システムキッチン、独立洗面台まで!さらにインターネット無料で、テレワークにも便利にゃ。オートロックや防犯カメラもあるから、安心して暮らせるにゃ。
そして何よりうれしいのが、ペット相談OKなところ★
小型犬・大型犬・猫、みんなウェルカムにゃ!なんと猫は3匹までOK!
屋内ドッグラン(30分200円)やグルーミングルーム(30分400円)もあるにゃ。ペットライフを思いきり楽しめる環境なのにゃ~♪
動物好きさんや、猫との暮らしを大事にしたい方にぴったりのお部屋にゃ!
わたしたち猫スタッフも太鼓判を押すにゃ★
気になったら、ぜひ一度見にきてほしいにゃ♪
ポイント・特徴
物件概要
【マンション】 物件番号:98581024 情報更新日:2025年10月26日 次回更新予定日:2025年11月09日| 所在地 | 東京都大田区仲池上1丁目27-5 | ||
|---|---|---|---|
| 交通 | |||
| 間取り/詳細 | 2LDK | 面積/バルコニー面積 | 44.39㎡/- |
| 賃料 | 19万円 | 管理費・共益費 | 18,000円 |
| 敷金/礼金/保証金 | 1ヶ月/1ヶ月/- | 償却/敷引 | -/- |
| 更新料 | 1ヶ月(新賃料) | 敷金積み増し | - |
| 権利金/雑費 | -/- | 駐車場/月額料金 | 空無/- |
| 保険加入/料金 | 有/24,000円 | 保険名/保険期間 | -/2年 |
| 保証人代行義務 | 必加入 | 保証会社 | その他 |
| 保証会社詳細 | 【収納代行】【新築プラン(2026年3月末まで)】初回保証料賃料共益費等20%、以後1年毎20% 月 | 向き | 南東 |
| 築年月(築年数) | 2025年 1月 (新築) | 契約期間 | 2年 |
| 種別/構造 | マンション/鉄筋コンクリート | 部屋/所在階/階建 | 0505/ 5階/ 7階建 |
| 総戸数 | 67戸 | 現況/入居可能日 | 完成済み/即時 |
| 特優賃 | - | 取引態様/賃貸区分 | 仲介/一般 |
| 物件番号 | 98581024 | 取引条件の有効期限 | 2025年11月09日 |
| 設備条件 |
|
||
| 備考 |
1階テラスは大型犬可・他中型犬や猫可屋内ドッグラン:30分200円最大1時間利用可グルーミングルーム:30分400円最大1.5時間利用可 |
||
| 条件(その他) | 清掃代※20㎡超+1,430円/㎡:3万9,600円 エアコン清掃代16,500円/台:1万6,500円 ペット相談:小型犬可 大型犬可 猫可 中型犬1匹+小型犬、猫で3匹ま | ||
| 取扱会社 |
|
||
※地図上に表示される物件の位置は付近住所に所在することを表すものであり、実際の物件所在地とは異なる場合がございます。

















